Page suivante
Page précédente
Pont-Saint-Esprit (30130)

Appartement 4 pièce(s) 2 chambre(s) 65.71 m²

1
Balcon
1
87 000 €
Réf 1482

À découvrir, appartement T4 avec extérieur

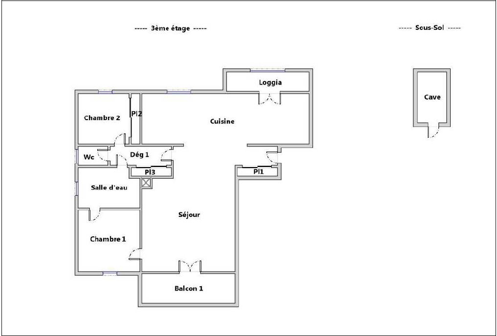
Situé au 3ème étage d’un immeuble de 4 niveaux construit en 1962, cet appartement de type 4 de 65,71 m², remis au goût du jour, offre un cadre de vie agréable et lumineux.

Il se compose d’un séjour de 18 m², d’un espace cuisine, de deux chambres et d’une salle d’eau. Le logement bénéficie du double vitrage, garantissant confort et tranquillité au quotidien.

Vous apprécierez ses extérieurs, avec un balcon et une loggia ensoleillée, idéals pour profiter des beaux jours. Une cave vient compléter ce bien.

La résidence bénéficie d'un parking collectif pour un stationnement facile.

Le prix de vente est fixé à 87 000 €.

La taxe foncière annuelle est de 840 €.

Pour toute information complémentaire ou pour organiser une visite, l’agence Vallet Immobilier se tient à votre disposition.

Bilan énergétique

Diagnostics énergetiques
A propos de ce bien Caractéristiques de ce bien
  • Surface 65,71 m²
  • séjour 18 m²
  • 2 chambre(s)
  • 1 salle(s) d'eau
  • construit en 1960
  • cuisine américaine (équipée)
  • Chauffage collectif : chaudière (gaz)
  • 1 parking(s)
  • 3ème étage
  • 4 étage(s)
  • cave
  • balcon
  • terrasse
  • visiophone
  • interphone

Composition

Composition de ce bien

Rez-de-chaussée

  • salon/sejour 18.22 m²
  • cuisine 18.15 m²
  • chambre 9.89 m²
  • chambre 8.19 m²

Info copro

Copropriété
  • Copropriété Oui
  • Lot n° 242
  • Nombre de lots 463
  • Quote part annuelle des charges 1 572 €
  • Plan de sauvegarde Non
  • Statut du syndic Pas de procédure en cours

Financier

Informations financières
Prix de vente 87 000 € Les honoraires d'agence seront intégralement à la charge du vendeur
Taxe foncière annuelle 840 €

Autour du bien

Découvrez le quartier

Simulation

Calcul des mensualités
* Champs obligatoires
Vallet Immobilier Agence